网站首页
关于我们
新闻资讯
产品展示
万搏平台_万搏平台(中国)
桥梁模具
箱涵管廊
路沿石模具
路沿石万搏平台_万搏平台(中国)
路沿石塑料模具
U型槽模具
U形槽万搏平台_万搏平台(中国)
U形槽塑料模具
隔离墩模具
隔离墩万搏平台_万搏平台(中国)
化粪池模具
化粪池万搏平台_万搏平台(中国)
检查井模具
检查井万搏平台_万搏平台(中国)
井盖模具
井盖万搏平台_万搏平台(中国)
井盖塑料模具
电力盖板模具
电力盖板万搏平台_万搏平台(中国)
电力盖板塑料模具
高铁、铁路工程模具
高铁、铁路工程万搏平台_万搏平台(中国)
高铁、铁路工程塑料模具
护坡模具
护坡万搏平台_万搏平台(中国)
护坡塑料模具
花墙砖模具
花墙砖万搏平台_万搏平台(中国)
花墙砖塑料模具
塑料模具
防撞墙模具
挂篮模板
风电基础模板
模具世界
模具加工
模具制品
模具公司
模具工业
万搏平台_万搏平台(中国)
模具加工
发布时间:2020-03-19 06:16:25
CONTACT
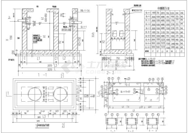
化粪池模具厂:某小区的化粪池施工结构图
化粪池结构图1
化粪池结构图2
化粪池结构图3
化粪池结构图4
上一篇:
隔离墩模具厂:隔离墩的安装工具和方法介绍
下一篇:
[化粪池模具厂]家用化粪池的标准尺寸
热门新闻
| NEWS
翰轩钢模板厂高层召开了目···
风电基础模板的拼装及每平···
PC预制墙板模具的生产厂···
预制阳台板模具在建筑中的···
完美注册
|
亚搏手机官方网站_亚搏(中国)
|
九州体育
|
万搏体育官方网站(中国)有限公司
|
yabocom(中国)官方网站
|
万搏平台_万搏平台(中国)
|
亚搏网页版
|
【乐鱼电竞官网】中国有限公司
|
WB.COM
|